マンション丘陵地に建つ、日当たりや眺望のよいマンション

所在地
熊本市北区龍田陳内3丁目
価 格
2,190万円
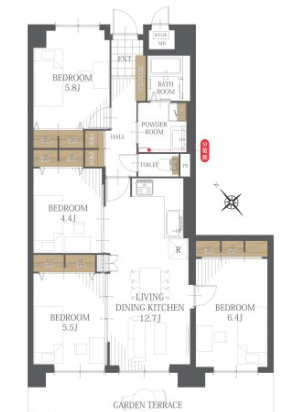
間取り
4LDK
専有面積
78.22㎡ (23.66坪)
交通
豊肥本線「竜田口」駅 徒歩13分
眺望や空気のながれなど気持ちがいい場所です
リフォーム内容充実
2025年 8月 完了
◆ キッチン システムキッチン交換
◆ 浴室 ユニットバス新規交換
◆洗面室 洗面化粧台新規交換
◆ トイレ 温水洗浄機能付トイレ新規交換
◆ 床 床材新規張替
◆建具 新規交換
◆壁・天井 全室クロス張替
◆ その他 ハウスクリーニング 等
丘の上に建つ大型マンションの8階の4LDKです。
陽当たりや風通しもいいこと間違いなし!!
住み替え、住宅ローンなどトータルでご相談下さい。
担当者田口 大

物件詳細情報
| 物件名 | ハウベストマンショングリーンヒル 802号室(R) | 住所 | 熊本市北区龍田陳内3丁目 |
|---|---|---|---|
| 価格 | 2,190万円 | 交通 | 豊肥本線「竜田口」駅 徒歩13分 |
| 築年月 | 1997/02 | 間取り | 4LDK |
| 間取り詳細 | LDK12.7帖 洋室6.4帖 洋室5.8帖 洋室5.5帖 洋室4.4帖 | 構造 | 鉄骨鉄筋コンクリート造 |
| 駐車場 | 平面駐車場/有(月額3000円~10,000円)空き状況は要確認 | 土地権利 | 所有権 |
| 階建 / 階 | 13階建 /8階 | 専有面積 | 78.22㎡ (23.66坪) |
| バルコニー面積 | 14.94㎡ | 管理形態 | 自主管理 |
| 管理費 | 4600 | 修繕積立金 | 11000 |
| 現況 | 空き家 | 引渡 | 相談 |
| 小学校区 | 龍田西小学校 | 中学校区 | 龍田中学校 |
| 設備 | エレベーター、システムキッチン、3口以上コンロ、シャワー付き洗面化粧台、シューズBOX、全居室収納、温水洗浄便座 | 備考 | ペット飼育不可 町内会費:月300円 |
アクセスマップ
条件に似た物件
戻る
この物件へのお問い合わせ
お電話でのお問い合わせ
096-273-6081
受付 / 10:00〜18:00(土は17:00まで)
毎週水曜・日曜(GW・お盆・正月定休)FAXでのお問い合わせ
096-273-6082
メールでのお問い合わせ
お問い合わせ




眺望がいいこと間違いなし